509 Blue Water Hwy DriveSurfside Beach, TX 77541


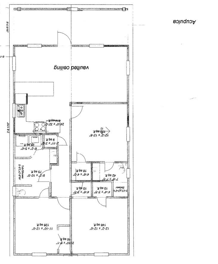
You will love the home, location, and price!! New construction of a 3/2 home in Surfside in the beachside subdivision Palm Point. There is easy access to the beach over the walk-over at the end of Gulfway Ct. This home has a large front deck that is half covered, and half uncovered. It has a popular floor plan that opens off the deck into an open living room to the dining area and kitchen with a vaulted ceiling. There is a hall to the rear with a pantry and to the left is a primary bedroom with a private bathroom. Further down the hall to the right is a full bathroom access to the utility room. There are two bedrooms to the rear. The bedroom adjacent to the bathroom has a door to the back deck. This is a popular floorplan seen all over Surfside Beach. Some are primary residences and others are rentals. Call for information
| 2 months ago | Listing updated with changes from the MLS® | |
| 3 months ago | Listing first seen on site |
IDX information is provided exclusively for consumers’ personal, non-commercial use. It may not be used for any purpose other than to identify prospective properties consumers may be interested in purchasing. This data is deemed reliable but is not guaranteed accurate by the MLS.
Data provided by HAR.com © 2025. All information provided should be independently verified.


Did you know? You can invite friends and family to your search. They can join your search, rate and discuss listings with you.